




Dos viviendas en Punta Umbría
Entre la Ría y el Océano Atlántico, y sometido a los vientos dominantes del Norte y Suroeste se ubican estas 2+2 viviendas pareadas, intentando establecer un diálogo con su entorno más próximo.
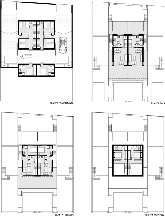
Un complejo programa familiar de residencia de temporada que pudiera dar cabida a las familias de cuatro hermanos, identificados con el lugar y sus recuerdos de veraneo, y con clara renuncia a cierta independencia, configuraban la propuesta. Esta debía dar respuesta a una ordenanza urbanística con estructuras de hábitat propias de otra época, que debe ser objeto de revisión, y que condicionó fuertemente su implantación. Por otro lado la propuesta debía resolver la posibilidad de adaptar el funcionamiento de las viviendas en verano a los cuatro núcleos familiares, sin perder su identidad y tipología de viviendas pareadas.
La libertad que nos dio la propiedad implicaba no poder rehuir de un pasado no muy lejano el que dominaba una tipología de vivienda implantada por la compañía inglesa RTM, para viviendas de vacaciones de su staff directivo, las «Casas de los Ingleses». El funcionamiento de estas tipologías adaptadas al lugar, y su atemporalidad, la propia geometría de la urbanización preexistente, con catalogación del conjunto de viviendas del entorno y con calles de arena sin asfaltar, condicionaron fuertemente la propuesta.
