






Alojamientos temporales para surfistas en Tarifa
Playa de los Lances, Tarifa (Cádiz)
Fecha Concurso: 2014
Promotor: Rethinking Architecture Competitions
Arquitecto: Miguel Ángel Esteve Portolés
Alojamientos temporales para surfistas en Tarifa
La necesidad reubicar a los surfistas que llegan en masa a Tarifa en verano, alojándose en autocaravanas o pequeñas furgonetas al pie de la playa, y que configuran un nuevo paisaje urbano caótico era el origen de este concurso, en el que se planteaba construir de forma efímera y con huella ecológica cero pequeños alojamientos temporales entre la Playa de Valdevaqueros y Casa de Porros, al pie del río del Valle y en los diversos ecosistemas que allí confluyen.
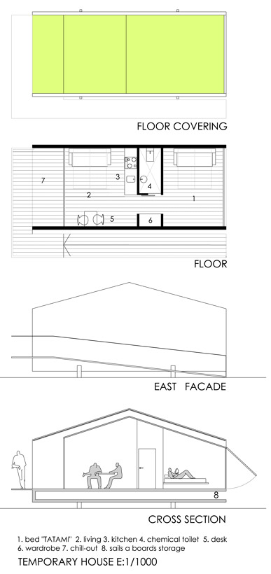
La propuesta daba respuesta con 100 pequeñas "cabañas" seriadas, orientadas a sur, y protegidas en sus laterales de los vientos de levante, fundamentalmente, y de poniente, y con vistas al estrecho y la cordillera de los Atlas en Marruecos. Las "cabañas" asentadas en las dunas, sin contacto con la arena para proteger del frío y calor, y con materiales livianos, fáciles de desmontar del tipo perfiles de acero conformados, tableros OSB, policarbonatos, etc; contaba con dos configuraciones, una con cubriciones o techos de EFTE a modo de velas integradas en el paisaje de los kites y las tablas de windsurfing, con colores similares, y que se pudieran "arbolar y desarbolar" para protegerse del sol o contemplar estrellas y otra más atemporal y tradicional con rollizos de cañizo propia de la zona que funcionaba de forma similar.
La composición de las "cabañas" a modo de restos de naufragio, desperdigadas, pero ordenadas permitía colonizar en el mar, en la marisma, en el río o en la arena, todos las variantes del ecosistema que existen en la desembocadura del río del valle.
El programa, era muy similar al de una pequeña furgoneta, con zona polivalente de estar y dormir, una pequeña cocina, aseo integrado qúímico, y zona externa para almacenar las tablas, velas, mástiles y demás.
>Ver Panel
