




13 Viviendas en Huelva
Proyecto y Dirección de 13 Viviendas, Oficina, Locales Comerciales, Trasteros y Garaje
C/ Tendaleras, 20. Huelva
Fecha Proyecto / Inicio / Terminación: 2003 /2006
Arquitectos: Miguel A. Esteve Campillo / Miguel A. Esteve Portolés
Arquitecto técnico: Pablo González De La Madrid Rodríguez
Promotor: PROMOCIONES TENDALERAS, 20. S.L.
Constratista: HICONSA
P.E.M: 737.102,08 Euros.
13 viviendas calle Tendaleras Huelva
En los límites del llamado "Casco Histórico" de Huelva y en transición entre la vieja y la nueva ciudad se ubica este Edificio de Viviendas. La Calle que en su día supuso la urbanización y ampliación de la ciudad hacia el Oeste y Sudoeste, acercando la ciudad por el antiguo barrio al sitio de Tendaleras hacia los muelles y el Rio Odiel sirvió de asentamiento de viviendas, comercios y oficinas del Estado. Posteriormente la ubicación del Mercado del Carmen posibilitó la confluencia un populoso barrio con arquitectura de aires coloniales.
Una serie de ordenanzas urbanísticas obsoletas creadas para un antiguo y verdadero "Casco Histórico" al que creemos esta zona no pertenecía imponía la composición de la fachada con huecos verticales.
La tangencia del solar, próximo a la "nueva ciudad" con el barrio de Pescadería y el futuro ensanche sur nos sugería la intención de mediante juegos compositivos romper esas ordenanzas de huecos verticales, propicias para el asentamiento innecesario de un neoclasicismo barato y de escasa "arquitectura" latente hoy en día.
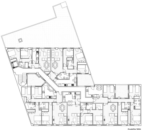
El programa de viviendas con oficinas, local comercial y garaje fue fuertemente condicionado por la propiedad que obligó a la diafanidad completa del local comercial, y con ello la ubicación del núcleo de escaleras adosada a la medianería.
