



Proyecto:
Adaptación Local Para Sede COAH. Fundación Antonio de la Lama. Segundo Premio
Situación:
Huelva
Fecha Concurso:
2000
Arquitectos:
Miguel Ángel Esteve Portolés
Fundación Antonio de la Lama
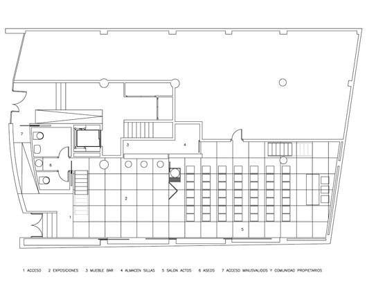
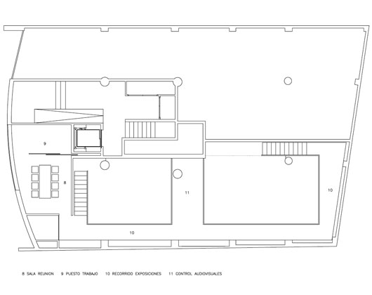
Esta pequeña intervención consistía en el máximo aprovechamiento de un local usado para archivo, como sede cultural del Colegio Oficial de Arquitectos de Huelva, bajo el nombre de la Fundación Antonio de la Lama.
Un juego de dos niveles de planta con distintos espacios a doble altura, y la apropiación de los espacios residuales de las medianeras como espacio para exposiciones es el grueso de la propuesta. Se trataba de huir de un único salón de conferencias donde nunca pasa nada, para ello se optó por un espacio polivalente que permitiera su compartimentación para diversos usos.
En fachada se optó por romper del todo la fachada de planta baja, dotando al local de una imagen que respondiera a la identidad de los ocupantes ocasionales, los arquitectos.
