


Proyecto:
Concurso Ideas Casa de la Cultura en Hinojos
Situación:
Huelva
Fecha concurso:
1999
Arquitectos:
Miguel Ángel Esteve Portolés
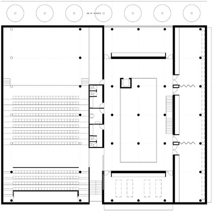
Casa de la Cultura en Hinojos
El concurso de ideas planteaba la construcción de una casa de la cultura junto a un instituto de reciente creación en un solar en esquina que compartía dos de sus medianeras con la posibilidad de establecer una pequeña calle trasera para calle de servicios.
La idea de un gran ágora central como espacio de encuentros, exposiciones, juegos, de forma que las aulas talleres y biblioteca se volcaran sobre éste. Una estructura de parasoles protegía de las grandes temperaturas que se alcanzan en la zona permitiendo el paso de la luz y la ventilación de este espacio abierto cerrado. Un gran salón de actos adosado a este espacio completaba la actuación.
El carácter popular del edificio obligó a una solución rotunda, primando los espacios comunes sobre los privativos en orden de una funcionalidad total.
>Ver Panel 01.