





Vivienda en La Monacilla, Aljaraque (Huelva)
C/ Naranjo de Bulnes, 7. Urbanización La Monacilla, Aljaraque (Huelva)
Fecha Proyecto / Terminación: 2015 /2016
Promotor: Privado
Arquitecto: Miguel Ángel Esteve Portolés
Arquitecto técnico: Pablo González de la Madrid Rodríguez
Contratista: Dos Fuentes, S.L.
P.E.M. : 116.000€
Superficie: 135,00m2
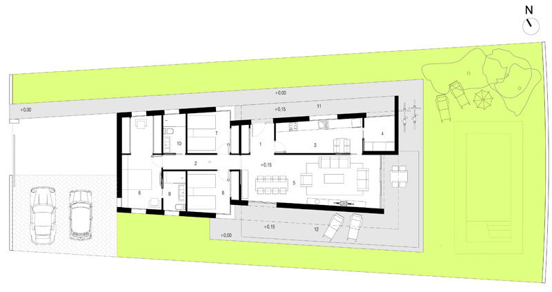
Casa unifamiliar en La Monacilla
El encargo ubicado en La Urbanización La Monacilla, en un entorno único y rodeado de vegetación, a los pies de un campo de golf consistía en una pequeña vivienda unifamiliar que debía estar íntimamente ligado a la parcela, y a las vistas que esta ofrecía, concentrando el programa de necesidades en una única planta. Todo ello llevó adaptar totalmente la geometría de la planta a la de la parcela, para poder obtener las mejores visuales al bosque de pinos que lindaba con la parcela. Se trataba de meter el paisaje dentro de la vivienda. El lenguaje empleado, sencillo, de arquitectura blanca con grandes huecos, y volúmenes muy definidos, resultó idóneo para el programa de necesidades que se requería para el cliente, consiguiendo del todo la conexión interior-exterior. Ni menos ni más.
El sistema constructivo empleado, Steel Framing, basado en perfiles de acero laminados y galvanizados, resultó novedoso siendo la primera vivienda construida en Huelva con este sistema, rápido y barato, que redujo considerablemente los plazos y costes de ejecución.
Junto a los perfiles de acero, la lana de roca, los tableros OSB y las placas de cartón yeso, todos ellos excelentes aislantes térmicos y acústicos, y la lámina hidrófuga del tipo Tyvek, que produce el efecto de barrera de agua y viento, lo que ayuda a conservar la casa fresca en verano y caliente en invierno, se consiguió una gran eficiencia energética muy por encima de los sistemas convencionales.
