





Viviendas“Valdemarín de Espartinas”
Calle Almanzor, Espartinas (Sevilla)
Fecha Anteproyecto: 2016
Promotor: Pad Inmobiliario (FEGAUNION)
Arquitecto: Miguel A. Esteve Portolés + Antonio Esteve Portolés + Manuel F. Marín Pérez
Viviendas en Espartinas
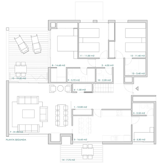
El proyecto, en progreso, propone un conjunto de 54 Viviendas situado en un olivar en ladera en Espartinas, agrupadas en 5 bloques de baja densidad, ordenados de tal modo que casi todos se orientan a Sur permitiendo la ventilación entre ellos mediante corrientes de aire creadas por el viento de "marea"del suroeste que refresca el ambiente en verano, y con vistas panorámicas a la Vega del Aljarafe. Un desorden dentro de un orden, en el que la relación con el exterior es lo fundamental ya sea mediante jardines o terrazas con pérgolas que a su vez protejan del sol en verano. Arquitectura bioclimática y sostenible dentro de un lenguaje contemporáneo.
Aún se encuentra en fase de proyecto.
