





Reforma vivienda en el Paseo Santa Fe, Huelva
Paseo santa Fe (Huelva)
Fecha Proyecto / Inicio / Terminación: 2015 /2015
Promotor: Privado
Arquitecto: Miguel A. Esteve Portolés
Contratista: Construcciones Dos Fuentes, S.L.
P.E.M. : 25.673,00€
Superficie Construida: 145,00m2 Superficie Útil: 120,00m2
Reforma vivienda en el Paseo Santa Fe
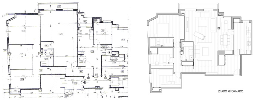
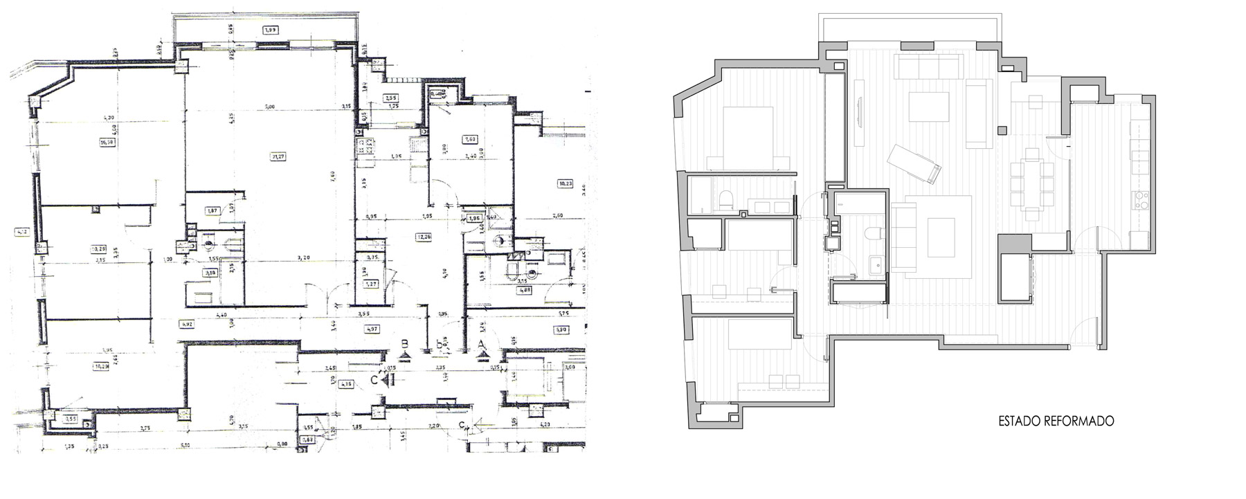
Ubicada en un edificio del Paseo Santa Fe, con buena vistas y muy soleado, pero muy desaprovechado, el encargo planteaba la necesidad de incorporar un segundo baño a la vivienda, y unir en un único espacio la cocina de grandes dimensiones con el estar comedor, además de actualizar la vivienda.
Bajo esas premisas se actualizó la vivienda aprovechando las luces a Sur, integrando el estar comedor, mediante una gran cristalera, con la cocina y el pasillo que unía de la zona de día a la de noche; y configurando un gran espacio polivalente, con circulaciones en ciclo.
En la zona de noche se incorporó un baño al dormitorio principal a modo de suite, y se incluyó un nuevo espacio de almacenaje, además de cambiar el funcionamiento de los dormitorios y baño secundario.
Un único pavimento para toda la vivienda de laminado de madera de merbau, el falso techo y armarios a modo de mamparas conformaban ese nuevo espacio diáfano, abierto y lleno de luz, que se mimetizaba del todo con el mobiliario de la vivienda.