




43 Viviendas en Isla Chica, Huelva
Proyecto y Dirección de 43 viviendas, locales y garaje
Calle Monsalve esquina Calle Bonares, Isla Chica, Huelva
Fecha Proyecto / Terminación: 2005 /2007
Arquitectos: Miguel Ángel Esteve Portolés / Miguel Ángel Esteve Campillo
Arquitecto técnico: Francisco Rico Rodríguez
Promotor: Aparcamientos Isla Chica, S.A.
Contratista: Laguna Costa S.A.
Presupuesto: 1.796.501,03€
Superficie: 6.020,46m2
43 Viviendas en Isla Chica, Huelva
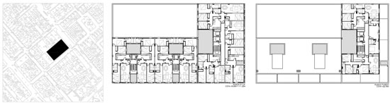
El encargo ubicado en pleno centro del barrio de Isla Chica partía de las premisas de un solar rectangular con fachada exterior a dos calles, una de ellas la calle Bonares de gran importancia y la otra, calle Monsalve, de escasa entidad y anchura.
El solar cuenta con diversas alineaciones y alturas lo que obligaba a realizar dos edificios que se conectaban entre sí por la planta de garaje. La diferencia de cotas entre medianeras o rasante exterior era muy acusado, de 1,36cm
Se pretendía encajar un programa de viviendas, locales y garaje con un presupuesto muy contenido. La arquitectura colindante no ayudaba ya que era y es de escasa entidad y vulgar lo que nos permitía realizar un edificio sobrio y sencillo donde el grueso del presupuesto se invirtiera en una fachada armoniosa y de rigurosa composición de huecos verticales, sin vuelos ni elementos ornamentales que se unieran al despropósito existente.
El edificio se resuelve en planta con tres cajas de escalera que distribuyen a diversas y numerosas tipologías de viviendas de dos, tres y cuatro dormitorios, dos de ellas pertenecientes al edificio de cinco alturas y otra que desemboca en galería perteneciente al edificio de 8 alturas.
En el lugar se hace ciudad, y dignifica el entorno, nada más se pretendía…
